Distinction in the competition
Architectural Competition
Development of an urban and architectural concept for the INFOCENTRUM building located at the University of Life Sciences Campus in Poznań
Client:
University of Life Sciences in Poznan
Role:
Architect
Year:
2018
Visualizations:
Cezary Dalek
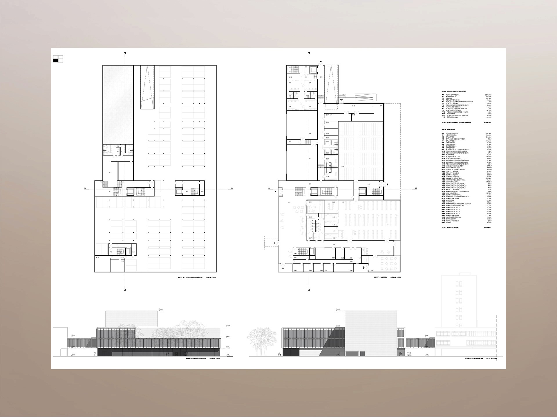
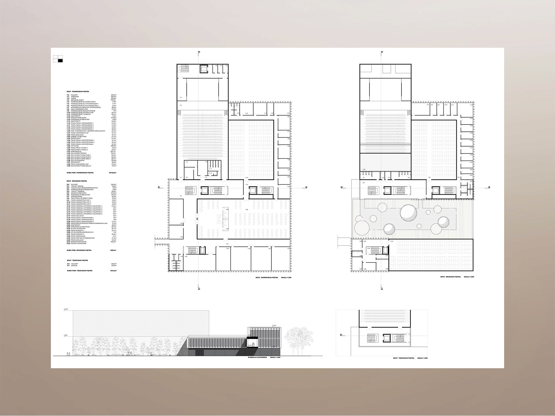
Challenge
The concept was expected to incorporate modern solutions and allow for flexible, future-oriented use of the building. Special attention was to be given to the rapidly evolving functions of different program elements—particularly the library—which was to address current needs as well as reflect the latest trends and anticipated future developments.
Objective
The aim of the competition was to obtain an urban and architectural concept that excelled in both compositional-spatial and functional-utility terms. The concept was expected to take into account the context of the existing site development surrounding the competition area, align with the existing buildings of the University of Life Sciences campus, and respect the copyright of the campus’s original designers. The competition entries were required to provide the best possible spatial solution by optimally combining functional and practical aspects, creating a friendly and comfortable environment for students and staff of the University.
Results
The proposed design successfully responded to the goals of the competition by delivering a cohesive and future-oriented urban and architectural concept. The project harmonized with the existing campus of the University of Life Sciences, respecting both the surrounding built environment and the authorship of the original campus designers. It presented a balanced and well-structured spatial composition that ensured functional efficiency and user comfort. The concept prioritized the creation of a welcoming, intuitive, and flexible space for students and staff, while incorporating modern architectural solutions that addressed evolving educational needs. Special attention was given to the library, which was designed as an adaptable and forward-thinking space, capable of meeting current demands while anticipating future trends in learning, technology, and collaboration. Overall, the project effectively combined clarity of form, contextual sensitivity, and long-term usability, fulfilling the competition’s ambition to create a high-quality, future-ready academic environment.






