Center for Artistic Education
Architectural Competition
The proposal creates a cultural hub right in the city center. It's a new Art Pavilion surrounded by beautiful public space. The project connects important city spots with clear walking paths. The building works as both a landmark and a practical space for art shows and learning. It draws inspiration from local materials and history. The design mixes modern style with traditional touches. The plaza around it brings people together. There's greenery, water features, and outdoor sculpture displays. It's a place where culture and daily life naturally come together.
Client:
City Rybnik
Role:
Architect
Year:
2018
Visualizations:
Cezary Dalek
Challenge
The project aimed to connect key urban nodes identified in the competition guidelines and resolve fragmented pedestrian routes within the city center. A key challenge was to design a building that would be instantly recognizable and serve as a central cultural anchor. Transforming an underutilized site into a meaningful public space that reflects both natural and cultural layers of the city.
Objective
To create a safe, functional, and people-friendly layout that links important public spaces—such as the court, market, river boulevard, and city hall—through clear and logical pedestrian axes. To create a visually striking pavilion that supports exhibitions and public education while referencing the architectural context through its scale, form, and materials. To develop a plaza that merges landscape and architecture—combining greenery, water elements, and sculptural space to invite people in and support social and cultural activity.
Results
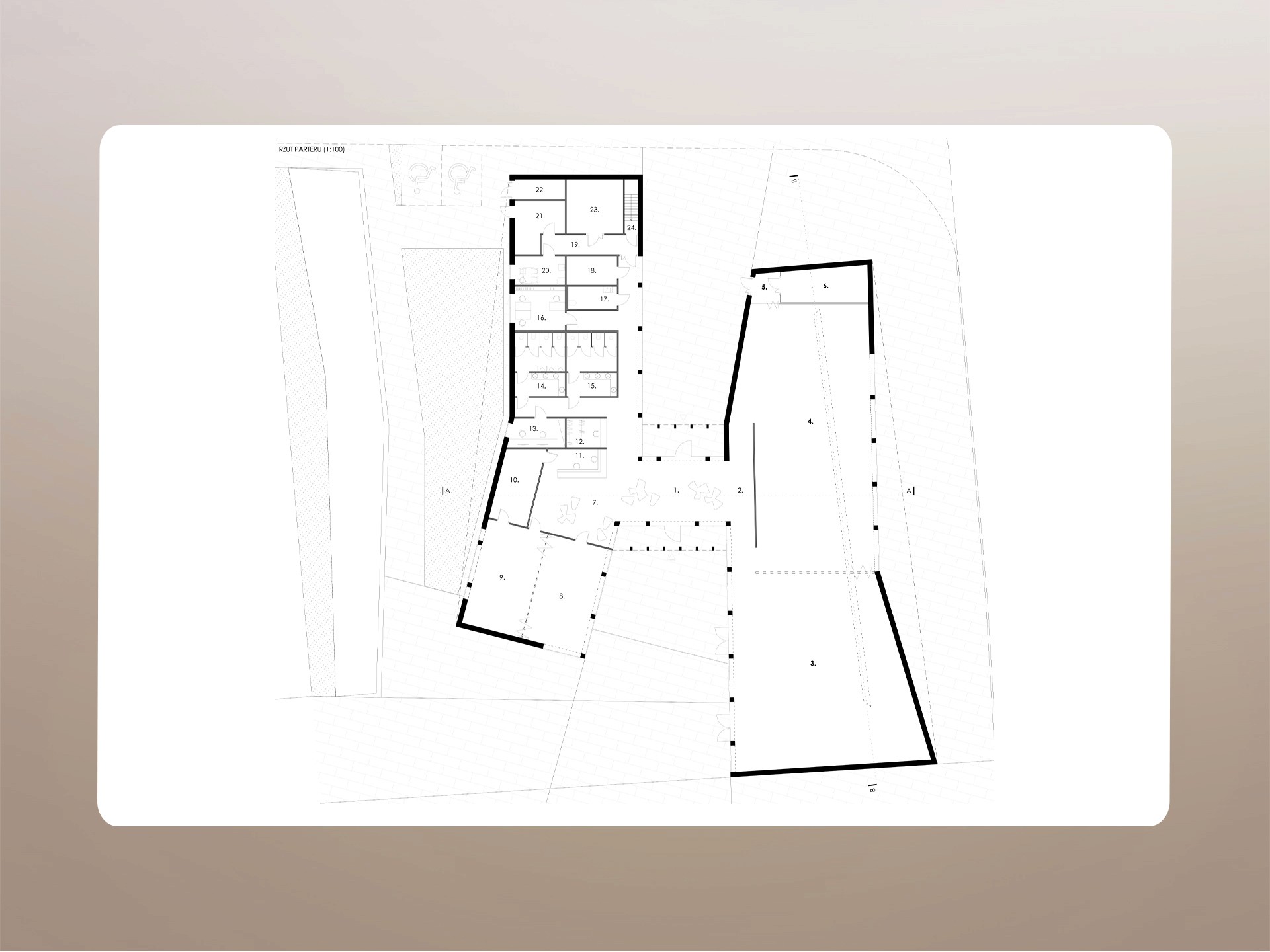
The design introduced three main spatial directions that formed the basis of the urban layout. This resulted in a coherent, walkable public space that naturally integrates surrounding functions and enhances the city’s connectivity. The final design consists of two interconnected volumes with distinct entrances, featuring a multi-pitched roof and light grey brick façades. The building draws inspiration from nearby historical structures, making it both contemporary and contextually grounded. The site was redesigned using granite paving patterns that echo urban directions, with tiered vegetation inspired by the idea of “rings” of greenery. A shallow urban pond references the historic riverbed, and seating and plants create a welcoming, well-composed space.






